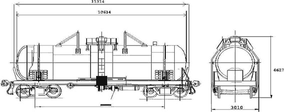
Цистерна для диоксида серы

(модель 15-1204)


Цистерна для диоксида серы

Модель вагона
15-1204
Номер технических условий
ТУ 3182- 014 - 00217403 - 96
Длина котла наружная, мм
10614
Грузоподъёмность, т
58
Наличие уклонна котла к сливному прибору
нет
Масса вагона, т
32
Количество секций, шт
1
Нагрузка: Давление в котле, МПа (кгс/см2)
от оси колёсной пары на рельсы, кН(тс)
223 (22,75)
условное рабочее
1,1 (11,0)
на один погонный метр пути, кН/м (тс/м)
74,2 (7,57)
создаваемое при гидравлическом испытании
2,15 (21,5)
Скорость конструкционная, км/ч
120
Наличие парообогревающей рубашки
нет
Габарит
(02-ВМ)
Наличие теплоизоляции
нет
База вагона, м
7,8
Толщина изоляции, мм
нет
Длина, м: Наличие теневой защиты
нет
по осям автосцепок
12,02
Наличие предохранительно-впускного клапана
есть
по концевым балкам рамы
10,8
Способ налива и слива - Налив- через люк при открытой крышке, слив самотеком при открытом сливном приборе и открытой крышке
Ширина максимальная, м
3,01
Наличие лестниц:
Высота от уровня головок рельсов, max, м
4,627
наружних
2
Количество осей, шт
4
внутренних
нет
Модель тележки
18-100
Год поставки на серийное производство
1998
Наличие переходной площадки
нет
Возможность установки буферов
есть
То же с ручным тормозом
нет
Основной материал
09Г2С-13
Наличие стояночного тормоза
есть
Ширина колеи
1520(1435)
Обьем кузова, м3 Срок службы, лет
30
полезный
43,7
Толщина котла, мм
полный
46
верхний и боковой
20
Количество загр. и разгр. люков, шт
1
броневой под опорами
20
Диаметр котла внутренний, мм
2400
днища
22